Shortgrove Estate, Cambridgeshire, UK

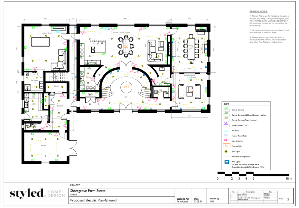
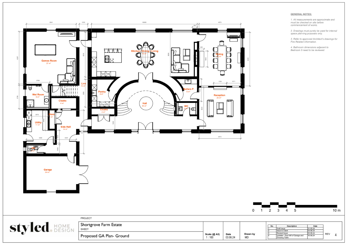
This project involved the design of a five-bedroom detached family dwelling in Cambridgeshire, conceived with a contemporary barn-like aesthetic to reflect the local rural setting.

Commissioned by Styled Home Design, we collaborated with them to deliver the full drawing package, including detailed bathroom layouts, electrical layouts, and bespoke joinery design. Our input ensured that the interior functionality matched the architectural vision, supporting a cohesive and well-resolved home for modern family living.

All image courtesy @ Styled Home Design

Previous
Previous

Abbotsgate House

Next
Next

Great Bardfield School